icon

[Agora Drawing] PD 2123 (DA 300)

Partially restored state plan of the Library of Pantainos ... W.B. Dinsmoor, Jr ... 1 copy in Princeton f Fragile Dirty Faded Heavy Tracing Paper Drafting Ink ... 1971

icon

[Agora Drawing] PD 2236 (DA 364)

Section ΡΡ Street Stoa - Ionic bases of lower colonnade ... W.B. Dinsmoor, Jr ... One copy in Princeton (PK 2024). f Fragile Drafting Film Drafting Ink Pencil ... 1973

icon

[Agora Drawing] PD 2238 (DA 366)

Section ΡΡ Street Stoa - Columns of lower order ... W.B. Dinsmoor, Jr ... 1 copy in Princeton (AE, 2024). f Fragile Drafting Film Drafting Ink Pencil ... 1973

icon

[Agora Drawing] PD 2250 (DA 375)

Restored elevation of the Street Stoa in the Late Roman Period ... W.B. Dinsmoor, Jr ... 1 copy with alterations in Princeton (AE, 2024). f Fragile Dirty Heavy Tracing Paper Drafting Ink ... 1973

icon

[Agora Drawing] PD 2277 (DA 379)

State section through Room 7 and colonnade. Section ΡΡ ... W.B. Dinsmoor, Jr ... Taken from Section F, PD 2181. Stoa and Classical Shops. N.-S. section looking east through Roman Room 7. Two copies in Princeton (PK 2024). f Fragile Drafting Film Drafting Ink Pencil ... 1974

icon

[Agora Drawing] PD 2277 (DA 380)

State section through Room 7 and colonnade. Section ΡΡ ... W.B. Dinsmoor, Jr ... Taken from Section F, PD 2181. Stoa and Classical Shops. N.-S. section looking east through Roman Room 7. Diazotype Drafting Ink Pen ... 1974

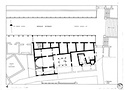
[Agora Drawing] PD 2123 (DA 344)

Partially restored state plan of the Library of Pantainos ... W.B. Dinsmoor, Jr ... 1971

icon

[Agora Drawing] PD 2329 (DA 395)

East-west section of the Library of Pantainos ... W.B. Dinsmoor, Jr ... f Fragile Drafting Film Drafting Ink ... 1975

icon

[Agora Drawing] PD 2566 (DA 407)

Broad Street and building over the Library of Pantainos ... John Travlos ... Refer to PD 2343. f Fragile Drafting Film Drafting Ink Pencil ... 1982

icon

[Agora Drawing] PD 272 (DA 282)

Actual state plan of the Library of Pantainos ... John Travlos ... Cf. PD 560. For earlier version, see PD 609. f Fragile Dirty Cartridge Paper Drafting Ink ... 1946

icon

[Agora Drawing] PD 274 (DA 286)

Valerian wall in front of the Library of Pantainos ... Charles S. Spector ... f Fragile Dirty Cartridge Paper Drafting Ink Pencil ... 1933

icon

[Agora Drawing] PD 275 (DA 287)

Several sections of the Library of Pantainos ... John Travlos ... f Dirty Cartridge Paper Drafting Ink ... 1946

icon

[Agora Drawing] PD 276 (DA 288)

Base of monument between the Stoa of Attalos and the Library of Pantainos ... John Travlos ... f Dirty Cartridge Paper Drafting Ink ... 1946

icon

[Agora Drawing] PD 277 (DA 289)

Two sections of the above monument (PD 276) ... John Travlos ... f Dirty Cartridge Paper Drafting Ink ... 1946

icon

[Agora Drawing] PD 278 (DA 290)

Dedicatory inscription of the Library of Pantainos ... John Travlos ... f Fragile Dirty Cartridge Paper Drafting Ink ... 1946

icon

[Agora Drawing] PD 279 (DA 292)

Details of column and entablature of the Library of Pantainos ... John Travlos ... f Dirty Cartridge Paper Drafting Ink ... 1946

icon

[Agora Drawing] PD 280 (DA 293)

Detail of anta and entablature of the Library of Pantainos ... John Travlos ... f Dirty Cartridge Paper Drafting Ink ... 1946

icon

[Agora Drawing] PD 609 (DA 294)

Actual state plan of the Library of Pantainos ... Charles S. Spector Arthur W. Parsons ... Earlier version of PD 272. f Fragile Torn Dirty Repaired Cartridge Paper Drafting Ink Pencil ... 1933

icon

[Agora Drawing] PD 2330 (DA 3892)

State Plan of a partially restored Library of Pantainos, stoas, etc. in Sections ΡΡ, ΡΡ', and Ι in all periods ... W.B. Dinsmoor, Jr ... Replaces PD 2168. Oversize, scanned summer 2019. Fragile Torn Heavy Tracing Paper Drafting Ink ... 1976

icon

[Agora Drawing] PD 2566 (DA 3810)

Broad Street and building over the Library of Pantainos ... John Travlos ... Refer to PD 2343 ... 1982

icon

[Agora Drawing] PD 2139 (DA 301)

Plan of section ΡΡ - Sections A and B - Library of Pantainos and Northern Stoa ... W.B. Dinsmoor, Jr ... f Dirty Diazotype Printing Ink ... 1971

icon

[Agora Drawing] PD 1136-a,b (DA 296)

L.R.F. Tower at the S.W. corner of the Library of Pantainos. Position of marbles before demolition ... K. K ... Original sketches only, not inked f Faint Dirty Light Tracing Paper Pencil ... 1959

icon

[Agora Drawing] PD 2139 (DA 345)

Plan of section ΡΡ - Sections A and B - Library of Pantainos and Northern Stoa ... W.B. Dinsmoor, Jr ... 1 copy in Princeton (AE, 2024). f Fragile Dirty Drafting Film Drafting Ink Pencil ... 1971

icon

[Agora Drawing] PD 278-b (DA 291)

Dedicatory inscription of the Library of Pantainos ... John Travlos ... Photo Dirty Photo Printing Ink ... 1946

[Agora Drawing] PD 1136-a,b (DA 295)

L.R.F. Tower at the S.W. corner of the Library of Pantainos. Position of marbles before demolition ... K.K ... Original sketches only, not inked f Fragile Distored Faint Dirty Light Tracing Paper Pencil ... 1959

icon

[Agora Monument] Library of Pantainos

Library Pantainos Concrete, Marble Fair, lower parts of walls preserved ... 100 A.D.

icon

[Agora Drawing] PD 2245 (DA 373)

Partially restored elevation and section of the Street Stoa ... W.B. Dinsmoor, Jr ... Stoa of the Library Pantainos. Late Roman reconstruction, restored elevation of orders. 87-415 87-415 f Fragile Torn Repaired Drafting Film Drafting Ink Pencil ... 1973

icon

[Agora Drawing] PD 2237 (DA 365)

Section ΡΡ Street Stoa - column of upper order ... W.B. Dinsmoor, Jr ... 2 copies in Princeton (AE, 2024). f Fragile Drafting Film Drafting Ink Pencil ... 1973

icon

[Agora Drawing] PD 2239 (DA 367)

Section ΡΡ Street Stoa - geison of lower order ... W.B. Dinsmoor, Jr ... 1 copy in Princeton (AE, 2024). f Fragile Drafting Film Drafting Ink Pencil ... 1973

icon

[Agora Drawing] PD 2241 (DA 369)

Section ΡΡ Street Stoa - architrave block of upper order ... W.B. Dinsmoor, Jr ... 1 copy in Princeton (AE, 2024). f Fragile Drafting Film Drafting Ink Pencil ... 1973

icon

[Agora Drawing] PD 611 (DA 4538)

Actual state plan of Temple of Ares and Altar ... John Travlos ... Unfinished. Replaced by PD 768 in 1953. Faint Dirty Faded Cartridge Paper Pencil ... 1936

icon

[Agora Image] 2002.01.2123

Partially restored state plan of the Library of Pantainos ... W.B. Dinsmoor, Jr ... PD 2123 ... 1971

icon

[Agora Image] 2002.01.2566

Broad Street and building over the Library of Pantainos ... J. Travlos ... PD 2566 Horizontal (normal) ... 1982

icon

[Agora Image] 2002.02.0005

Restored plan, showing the Library of Pantainos (right), Street leading to Roman Agora (center) and the south end of the Stoa of Attalos (left) ... J. Travlos ... PD 273-a Horizontal (normal) ... 1946

icon

[Agora Image] 2002.01.2243

Restored plan of the Street Stoa and Apsidal Hall ... W.B. Dinsmoor, Jr ... PD 2243 Horizontal (normal) ... 1973

icon

[Agora Image] 2002.01.2246

Partially restored plan of Greek buildings in section ΡΡ ... W.B. Dinsmoor, Jr ... PD 2246 Horizontal (normal) ... 1973

icon

[Agora Image] 2002.01.2250

Restored elevation of the Street Stoa in the Late Roman Period ... W.B. Dinsmoor, Jr ... PD 2250 ... 1973

icon

[Agora Image] 2002.01.2265

Perspective drawing of the Library of Pantainos, Street Stoa, and Gate of Athena in the 2nd century A.D., looking east ... W.B. Dinsmoor, Jr ... PD 2265 Horizontal (normal) ... 1974

icon

[Agora Image] 2002.01.2266

Perspective drawing of the Street Stoa and the Gate of Athena in the 5th century A.D., looking southeast ... W.B. Dinsmoor, Jr ... PD 2266 Horizontal (normal) ... 1974

icon

[Agora Image] 2002.01.2276

Restored section of the Street Stoa and Apsidal Hall ... W.B. Dinsmoor, Jr ... PD 2276 Horizontal (normal) ... 1974