image
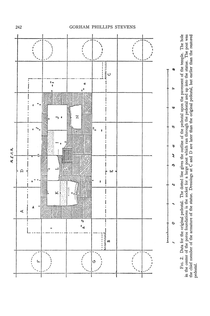
Publication Page: Hesperia 24.3, s. 76, p. 242