Agathe
|
Help
Result
251
of
258
Filters & Options
Show
Everything
(386,804)
Publications
(2,260)
Reports
(96)
Places and Monuments
(77)
Plans and Drawings
(11,614)
Images
(157,484)
Objects
(47,674)
Coins
(4,632)
Deposits
(1,765)
Notebooks
(306)
More
View as
List
Icons
Table
Map
References
All References
(2)
Publication: Agora XXIV
Image: 1997.15.0133 (82-368)
Sign in
Provide feedback
Anything not working? Typos? Let us know.
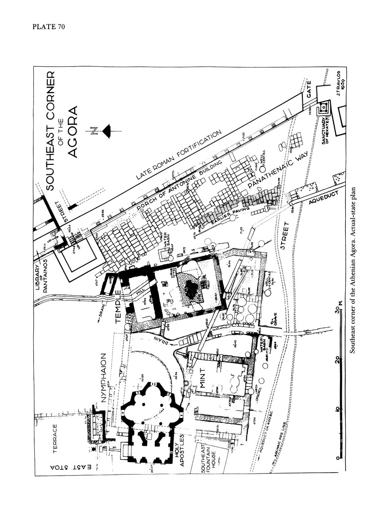
Publication Page: Agora 24, s. 251