| Inventory Number: | A 3387 | |
| Section Number: | ΒΒ 745 | |
| Title: | Frieze Block: Doric | |
| Category: | Architecture Poros | |
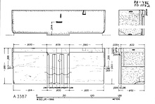
| Description: | Block now rests upside down so its original top is not visible. Both ends of block treated like right end of A 3386, i.e. rough in upper half and chamfered at front, square cut in lower half. Back of block worn by traffic before last reuse. Cf. notebook III, p, 586, for blocks of same series reused in Market of Caesar and Augustus with different system of jointing. ADDENDA 5 June 1964: When the block was moved to South Stoa II area the top could be examined. In the very middle of the top is a large dowel hole for fastening the geison (an end dowel that gripped two adjacent blocks) and a cutting for a clamp leading to the frieze backer. For sketch cf. notebook ΒΒ VII, p. 1358; for a photo cf. notebook Τ XXXIV, p. 6687. 6 February 1967: Original location in Square Peristyle: Second from interior angle triglyph block. (W.B.D. Jr.). | |
| Notes: | Agora Sample No. 568. Found at O/5-15/12 (Fall 2016). | |
| Context: | Incorporated in west side of distributing basin of Hadrianic water system at west edge of Panathenaic Way opposite S.W. corner of Eleusinion. | |
| Negatives: | Leica, 83-320, 83-543, 83-544 | |
| PD Number: | PD 1562 | |
| Dimensions: | L. 1.66; H. 0.66, (triglyph head band) 0.08, (metope head band) 0.07; W. (metope) 0.61-0.62; Th. (above metope) 0.423, (above triglyph) 0.466 | |
| Material: | Poros | |
| Date: | 18 July 1963 | |
| Section: | ΒΒ | |
| Bibliography: | Agora XXVII, no. Arch37, pp. 53, 59, 60, 61, 71, 83, 122, pl. 26, ill 19. | |
| References: | Publication: Agora XXVII Monument: Square Peristyle Drawing: PD 1562 (DA 271) Drawing: PD 2705 (DA 281) Images (9) Card: A 3387 Card: A 3387 |