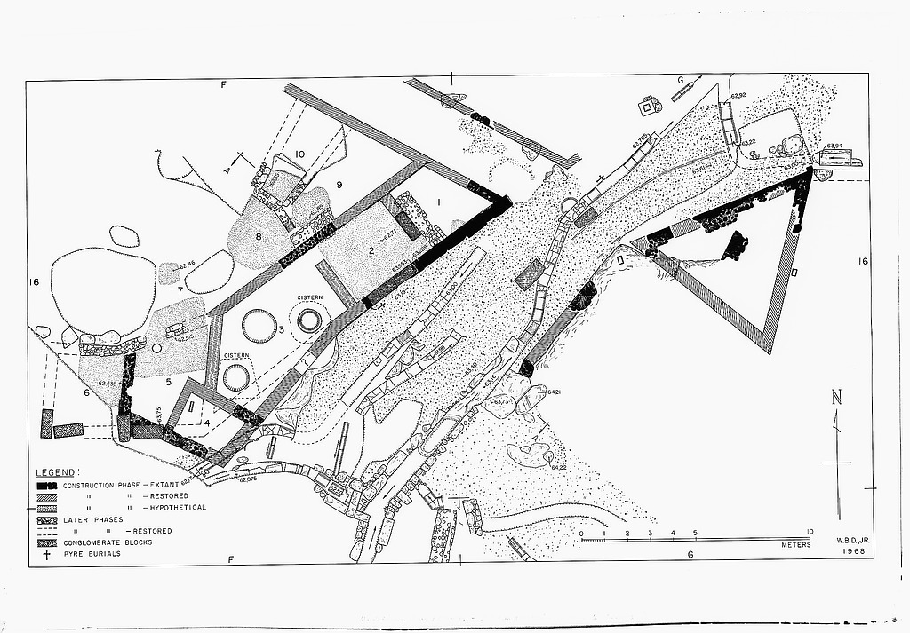
Image: 2012.59.0293 (88-352)Combined state plan and restored plan of the Marble Worker's House (5th-3rd c. B.C.) and the Triangular Shrine (5th c. B.C.).
image
Archive Number:   2012.59.0293
Title:   Combined state plan and restored plan of the Marble Worker's House (5th-3rd c. B.C.) and the Triangular Shrine (5th c. B.C.).
Negative:   88-352
PD Number:   PD 1852
Photographer:   W.B. Dinsmoor, Jr.
Date:   1968
Bibliography:   Guide (2010), p. 175, fig. 139.
    Guide (1990), p. 185, fig. 124.
    Camp (1986), p. 142, fig. 120.
    Hesperia 38 (1969), p. 384, fig. 1.
Rating:   2
Section:   Δ'
Storage:   Drawer 13
References:   Publication: Hesperia 38 (1969)
Image: 1997.13.0036 (88-352)