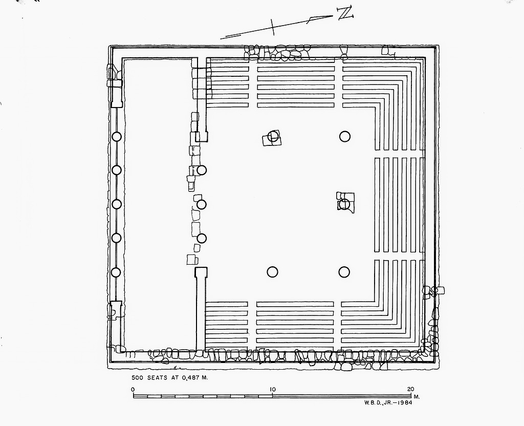
Image: 2012.59.0286 (88-345)Old Bouleuterion restored with colonnade, ca. 500 B.C.
image
Archive Number:   2012.59.0286
Title:   Old Bouleuterion restored with colonnade, ca. 500 B.C.
Negative:   88-345
PD Number:   PD 2562
Photographer:   W.B. Dinsmoor, Jr.
Date:   1984
Bibliography:   Camp (1986), p. 52, fig. 31.
Rating:   2
Section:   ΟΕ
Storage:   Drawer 3
References:   Drawing: PD 2562 (DA 4109)
Image: 1997.03.0394 (88-345)