Image: 2012.59.0093 (88-141)Restored plan and elevation of the Southeast Temple using Athena Sounias architecture.
image
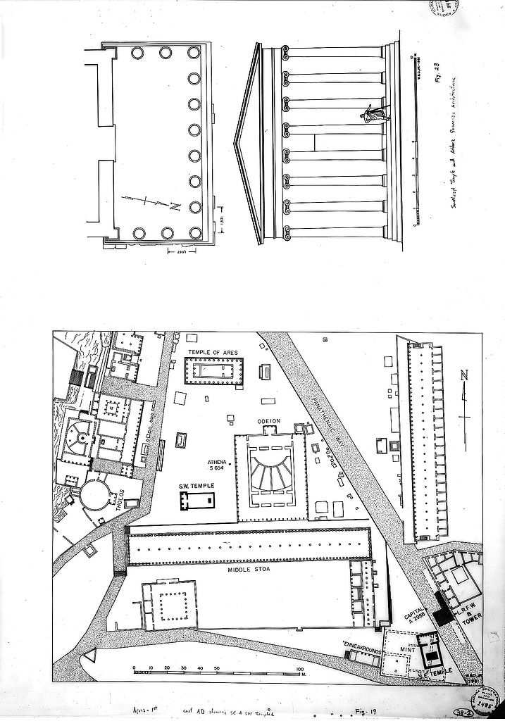
Archive Number:   2012.59.0093
Title:   Restored plan and elevation of the Southeast Temple using Athena Sounias architecture.
Negative:   88-141
PD Number:   PD 2484
Photographer:   W.B. Dinsmoor, Jr.
Date:   1981
Bibliography:   Guide (1990), p. 150, fig. 97.
    Hesperia 51 (1982), p. 430, fig. 14.
Rating:   2
Storage:   Drawer 15
References:   Publication: Hesperia 51 (1982)
Drawing: PD 2484 (DA 565)
Drawing: PD 2484 (DA 566)
Image: 1997.15.0040 (88-141)
Image: 2002.01.2482 (88-141)