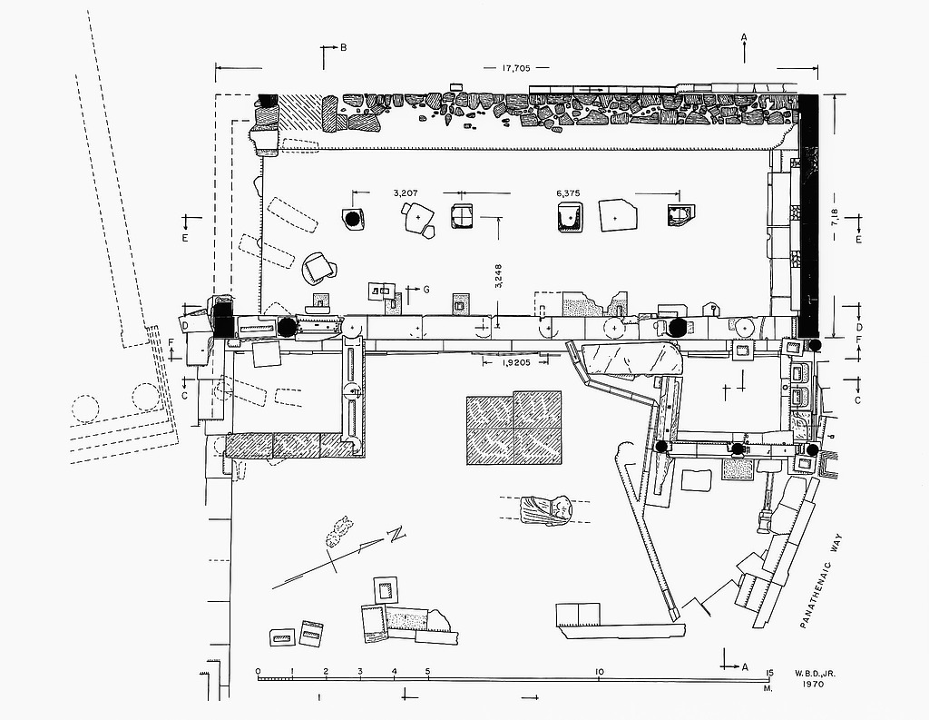
Image: 2012.58.1102 (87-417)Actual state plan of the Royal Stoa with the court yard in front of it.
image
Archive Number:   2012.58.1102
Title:   Actual state plan of the Royal Stoa with the court yard in front of it.
Negative:   87-417
PD Number:   PD 1983
Photographer:   W.B. Dinsmoor, Jr.
Date:   1970
Bibliography:   Guide (1990), p. 80, fig. 41.
    Camp (1986), p. 55, fig. 36.
    Hesperia 40 (1971), p. 245, fig. 1.
Rating:   2
Section:   ΒΓ
Storage:   Drawer 1
References:   Publication: Hesperia 40 (1971)
Drawing: PD 1983 (DA 2289)
Drawing: PD 1983 (DA 2290)
Drawing: PD 1983 (DA 2129)
Image: 1997.01.0551 (87-417)