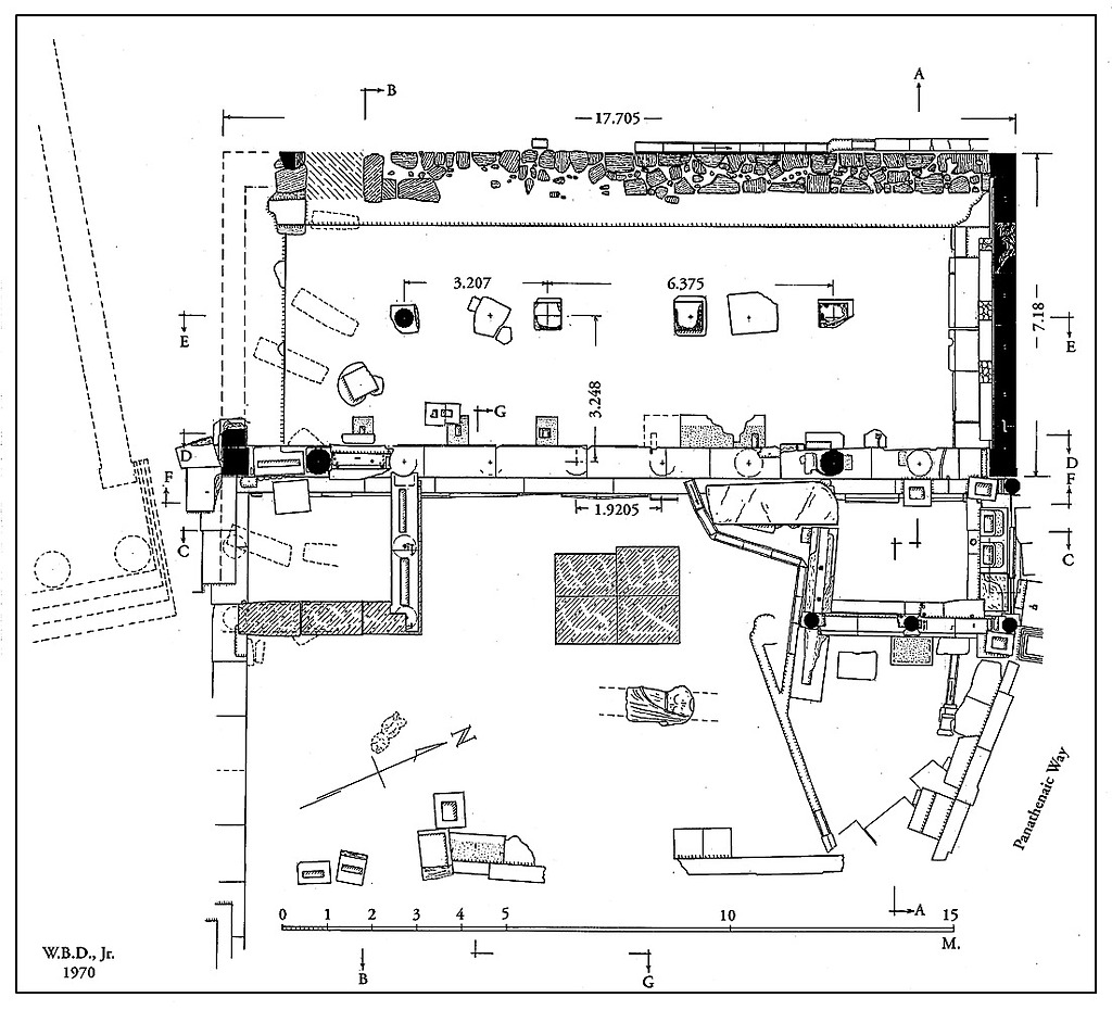
Image: 2008.20.0079Actual state plan of the Royal Stoa.
image
Archive Number:   2008.20.0079
Title:   Actual state plan of the Royal Stoa.
PD Number:   PD 1983-2003
Bibliography:   AgoraPicBk 16 (2003), p. 40, fig. 61.
Rating:   4
References:   Publication: AgoraPicBk 16 (1976)
Monument: Royal Stoa
Drawing: PD 1983-2003 (DA 13289)
Drawing: PD 1983-2003 (DA 13291)