| Archive Number: | 2002.02.0005 | |
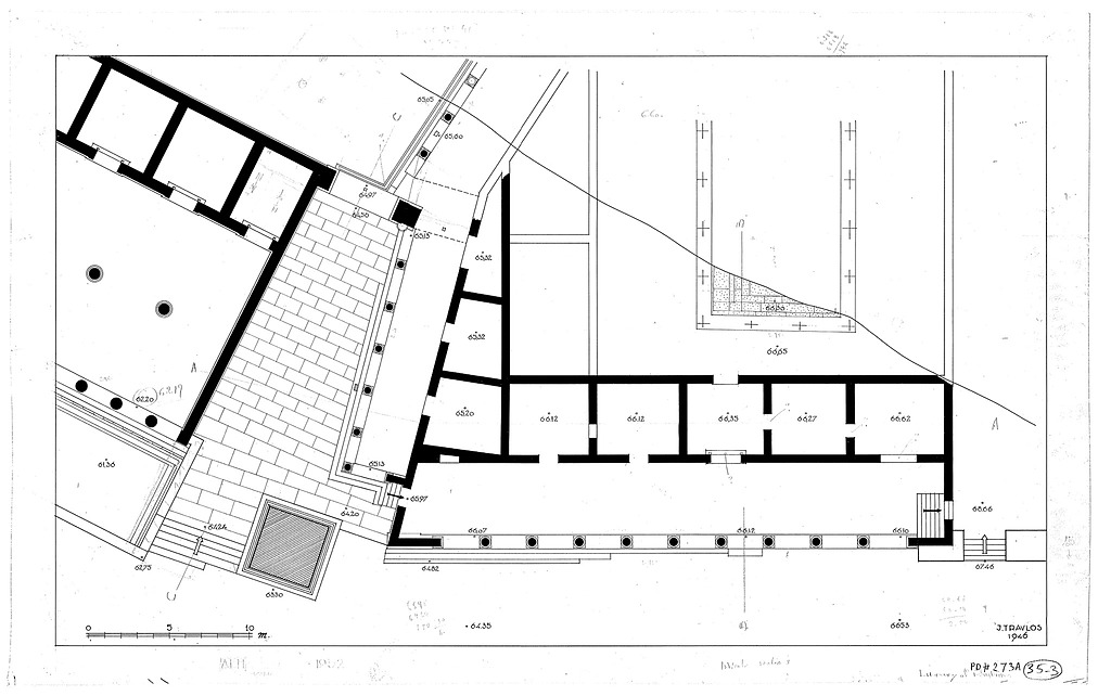
| Title: | Restored plan, showing the Library of Pantainos (right), Street leading to Roman Agora (center) and the south end of the Stoa of Attalos (left). | |
| PD Number: | PD 273-a | |
| Photographer: | J. Travlos | |
| Date: | 1946 | |
| Bibliography: | Hesperia 16 (1947), pl. XLIV. | |
| Rating: | 1 | |
| Storage: | 35-3 | |
| References: | Publication: Hesperia 16 (1947) Report Page: 2005 Excavations, s. 8 Monument: Library of Pantainos Drawing: PD 273-a (DA 283) |