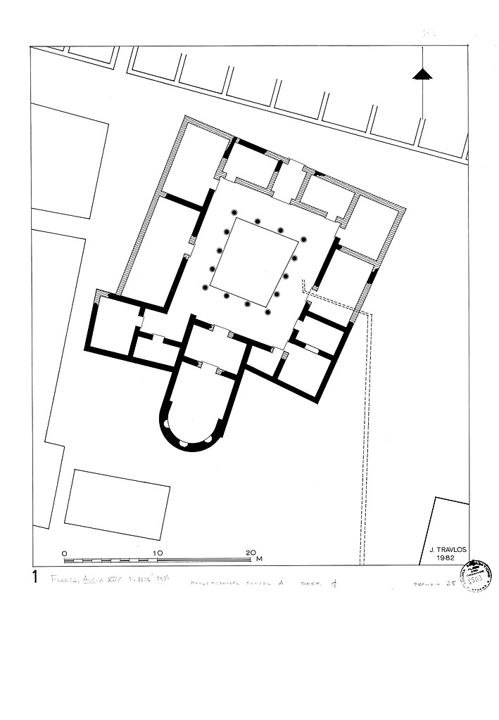
Image: 2002.01.2563Plan of Philosophical School A.
image
Archive Number:   2002.01.2563
Title:   Plan of Philosophical School A.
PD Number:   PD 2563
Photographer:   J. Travlos
Date:   1982
Bibliography:   Agora XXIV, pl. 26a.
Rating:   1
References:   Publication: Agora XXIV
Publication Page: Agora 24, s. 207
Drawing: PD 2563 (DA 3040)
Drawing: PD 2563 (DA 3808)