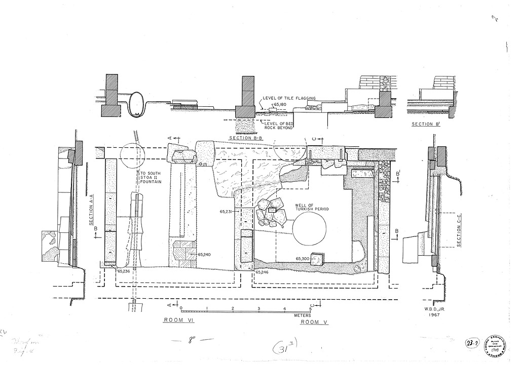
Image: 2002.01.1709State plan and sections of Rooms V and VI of South Stoa I.
image
Archive Number:   2002.01.1709
Title:   State plan and sections of Rooms V and VI of South Stoa I.
PD Number:   PD 1709
Photographer:   W.B. Dinsmoor, Jr.
Date:   1967
Bibliography:   Hesperia 37 (1968), p. 50, fig. 4.
Rating:   1
References:   Publication: Hesperia 37 (1968)
Monument: South Stoa I
Drawing: PD 1709 (DA 2725)
Drawing: PD 1709 (DA 2752)
Drawing: PD 1709 (DA 2786)