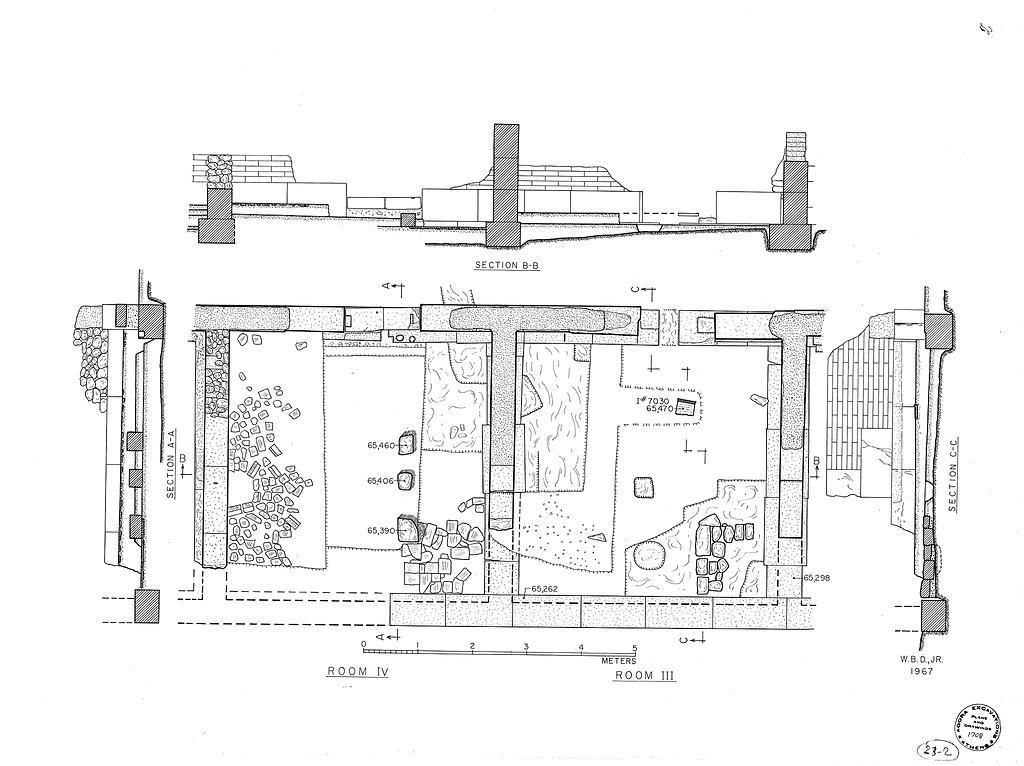
Image: 2002.01.1708State plan and sections of Rooms III and IV of South Stoa I.
image
Archive Number:   2002.01.1708
Title:   State plan and sections of Rooms III and IV of South Stoa I.
PD Number:   PD 1708
Photographer:   W.B. Dinsmoor, Jr.
Date:   1967
Rating:   1
References:   Monument: South Stoa I
Drawing: PD 1708 (DA 2723)
Drawing: PD 1708 (DA 2787)