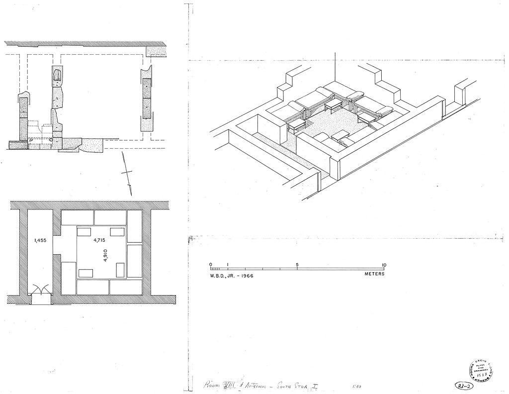
Image: 2002.01.1527South Stoa I, Room VIII from the east, together with the narrow room at its east side. (actual state and restored plans, and isometric view)
image
Archive Number:   2002.01.1527
Title:   South Stoa I, Room VIII from the east, together with the narrow room at its east side. (actual state and restored plans, and isometric view)
PD Number:   PD 1527
Photographer:   W.B. Dinsmoor, Jr.
Date:   1966
Rating:   1
References:   Monument: South Stoa I
Drawing: PD 1527 (DA 2722)