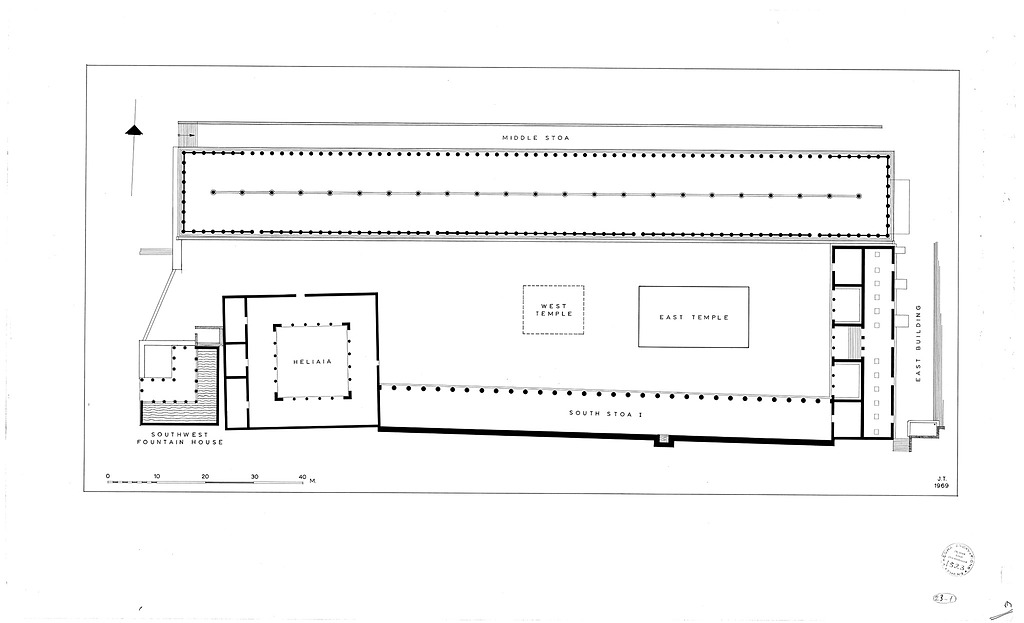
Image: 2002.01.1523Restored drawing of the South Square complex, ca. 100 B.C.
image
Archive Number:   2002.01.1523
Title:   Restored drawing of the South Square complex, ca. 100 B.C.
PD Number:   PD 1523
Photographer:   J. Travlos
Date:   1966
Rating:   1
References:   Drawing: PD 1523 (DA 2696)
Drawing: PD 1523 (DA 2697)
Drawing: PD 1523 (DA 2698)