| Archive Number: | 2002.01.1301 | |
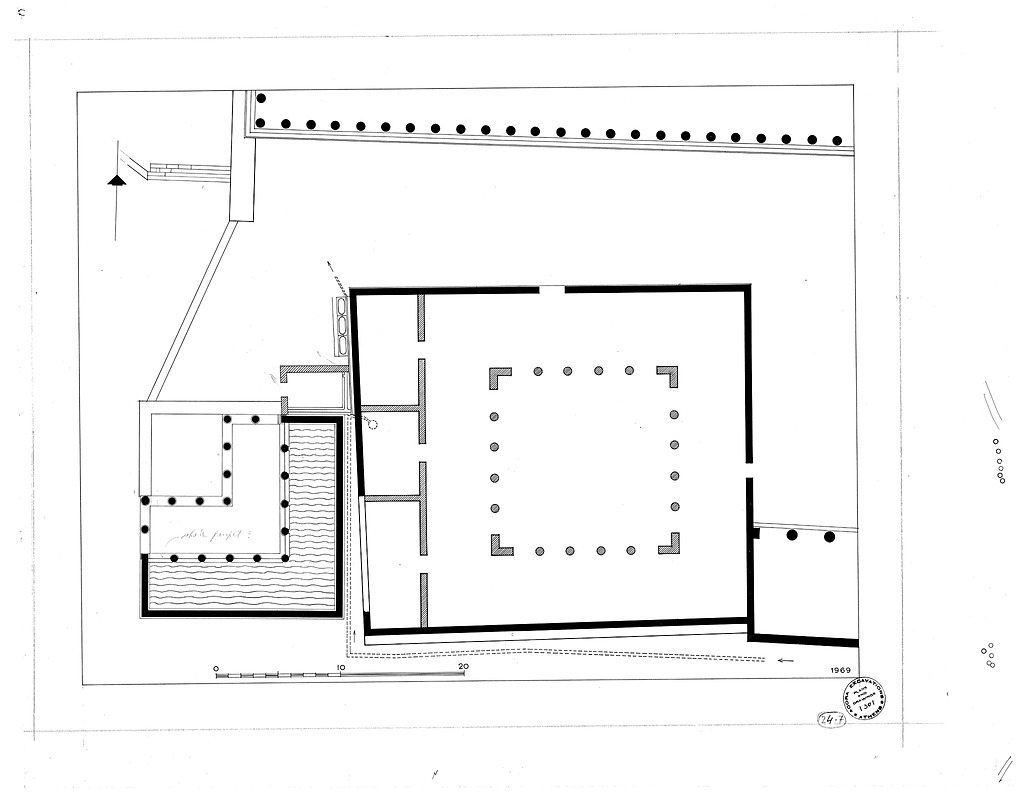
| Title: | Heliaia after Hellenistic remodelling. | |
| PD Number: | PD 1301 | |
| Photographer: | J. Travlos | |
| Date: | 1964 | |
| Rating: | 1 | |
| References: | Monument: Aiakeion Drawing: PD 1301 (DA 2987) Drawing: PD 1301 (DA 2938) |
|
Classifications Sign in Provide feedback |
|