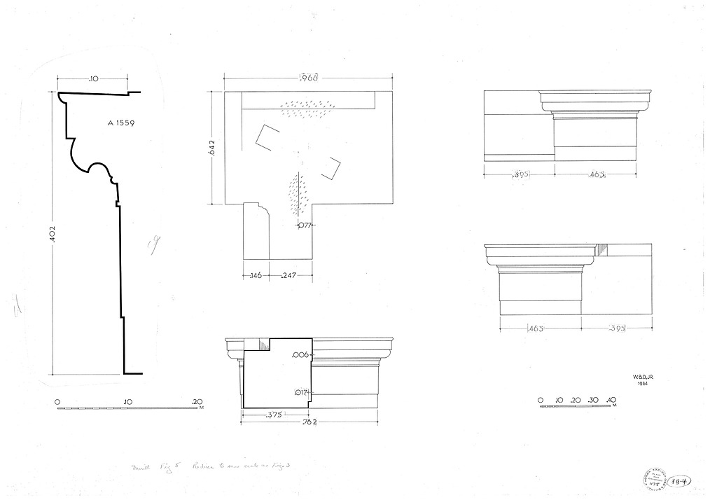
Image: 2002.01.1175Stoa Poikile: Pier capital section (1:1), top plan (1:5), and three elevations (1:5).
image
Archive Number:   2002.01.1175
Title:   Stoa Poikile: Pier capital section (1:1), top plan (1:5), and three elevations (1:5).
PD Number:   PD 1175
Photographer:   W.B. Dinsmoor, Jr.
Date:   1961
Bibliography:   Hesperia 39 (1970), p. 247, fig. 5.
Rating:   1
Section:   ΒΕ
References:   Publication: Hesperia 39 (1970)
Monument: Stoa Poikile
Drawing: PD 1175 (DA 2061)
Object: A 1559