| Archive Number: | 2002.01.0126 | |
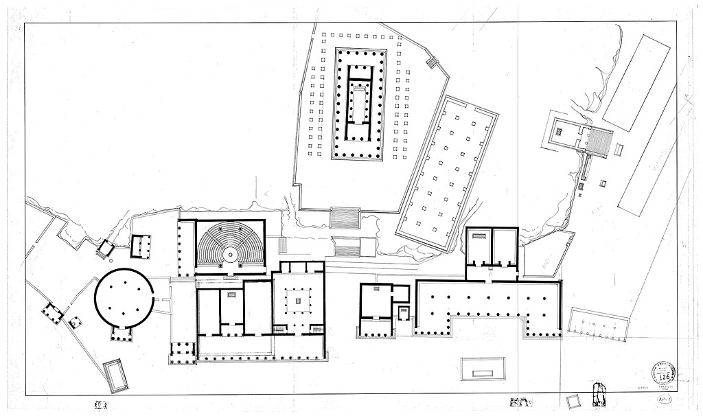
| Title: | Buildings on the west side of the agora. | |
| PD Number: | PD 126 | |
| Photographer: | J. Travlos | |
| Date: | 1972 | |
| Rating: | 1 | |
| References: | Drawing: PD 126 (DA 4136) Drawing: PD 126 (DA 4092) |
|
Show Everything (382,540) Publications (2,251) Reports (96) Places and Monuments (77) Plans and Drawings (11,611) Images (154,235) Objects (47,223) References Classifications Sign in Provide feedback |
|