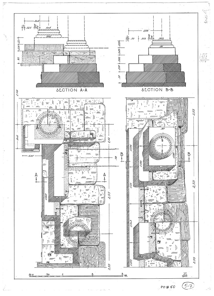
Image: 2002.01.0050Details of front colonnade of Hellenistic Metroon and Propylon to the New Bouleuterion.
image
Archive Number:   2002.01.0050
Title:   Details of front colonnade of Hellenistic Metroon and Propylon to the New Bouleuterion.
PD Number:   PD 50
Date:   1936
Rating:   1
Section:   ΟΕ
    Ε
    Β
References:   Monument: Metroon
Monument: Propylon to the New Bouleuterion
Drawing: PD 50 (DA 4251)