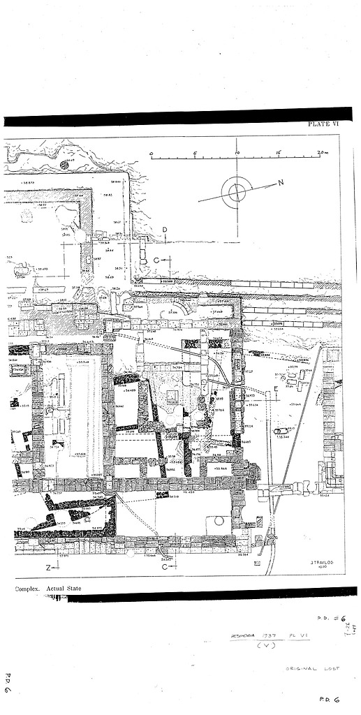
Image: 2002.01.0006Actual state plan of the Metroon-Bouleuterion complex.
image
Archive Number:   2002.01.0006
Title:   Actual state plan of the Metroon-Bouleuterion complex.
PD Number:   PD 6
Photographer:   J. Travlos
Date:   1936
Bibliography:   Hesperia 6 (1937), pl. VI.
Rating:   1
Section:   Β
    Ε
    ΟΕ
References:   Publication: Hesperia 6 (1937)
Monument: Bouleuterion
Monument: Metroon
Drawing: PD 6 (DA 4345)
Drawing: PD 6 (DA 12335)