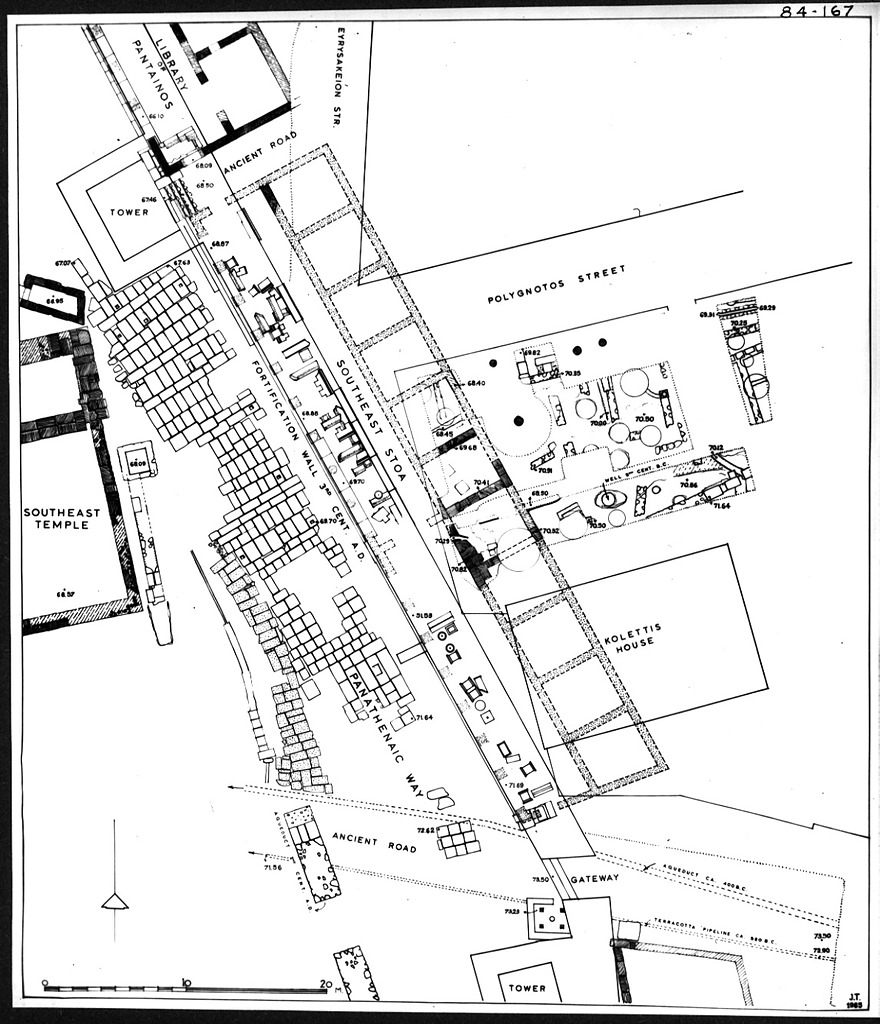
Image: 1997.15.0136 (84-167)Actual state plan of the Panathenaic Way and the Late Roman Fortification Wall with the Towers W2 and W3 indicated and their relation with the Southeast Temple. Also the Southeast Stoa as revealed by the excavation in Coletti Garden. Note also the Crossroad Shrine by the Tower W2.
image
Archive Number:   1997.15.0136
Title:   Actual state plan of the Panathenaic Way and the Late Roman Fortification Wall with the Towers W2 and W3 indicated and their relation with the Southeast Temple. Also the Southeast Stoa as revealed by the excavation in Coletti Garden. Note also the Crossroad Shrine by the Tower W2.
Negative:   84-167
PD Number:   PD 1404
Photographer:   John Travlos
Date:   1965
Bibliography:   Hesperia 35 (1966), p. 81, fig. 1.
Rating:   1
Section:   ΠΑ
Storage:   Drawer 15
References:   Publication: Hesperia 35 (1966)
Places and Monuments (5)
Drawing: PD 1404 (DA 414)
Drawing: PD 1404 (DA 415)
Image: 2012.57.0100 (84-167)