| Archive Number: | 1997.11.0008 | |
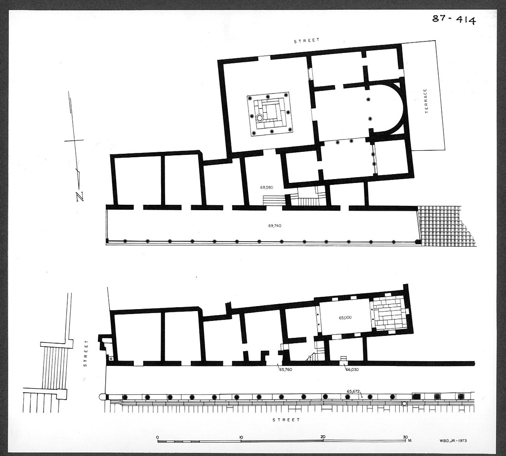
| Title: | Restored plans of the "Street Stoa" and the Late Roman Building with the apsidal hall. | |
| Negative: | 87-414 | |
| PD Number: | PD 2243 | |
| Photographer: | W.B. Dinsmoor, Jr. | |
| Date: | 1973 | |
| Bibliography: | Hesperia 44 (1975), p. 334, fig. 1. | |
| Rating: | 1 | |
| Section: | ΡΡ | |
| Storage: | Drawer 11 | |
| References: | Publication: Hesperia 44 (1975) Monument: Library of Pantainos Monument: Street to the Roman Agora Drawing: PD 2243 (DA 371) Image: 2012.58.1099 (87-414) |