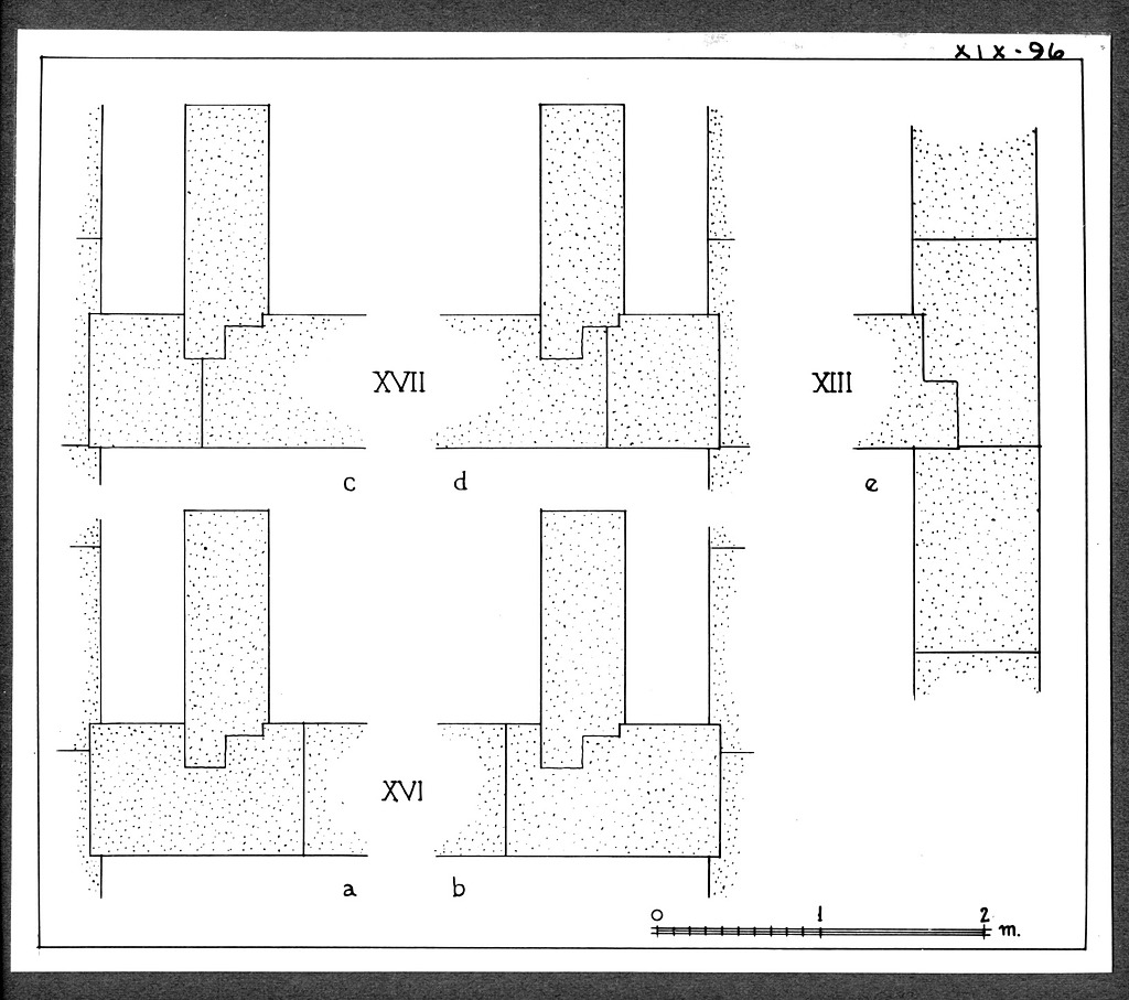
Image: 1997.05.0127 (XIX-96)A-D: Possible positions for the preserved piece of interior architrave. E: Junction of east and north walls of cella at level of 13th course.
image
Archive Number:   1997.05.0127
Title:   A-D: Possible positions for the preserved piece of interior architrave. E: Junction of east and north walls of cella at level of 13th course.
Negative:   XIX-96
Date:   ca. 1939
Bibliography:   Hesperia Suppl. 5 (1941), p. 82, fig. 32.
Rating:   1
Section:   ΚΚ
Storage:   Drawer 5
References:   Publication: Hesperia Suppl. 5 (1941)
Monument: Temple of Hephaistos
Image: 2012.51.0426 (XIX-96)