| Name: | PD 2746-b (DA 452) | |
| PD: | PD 2746-b | |
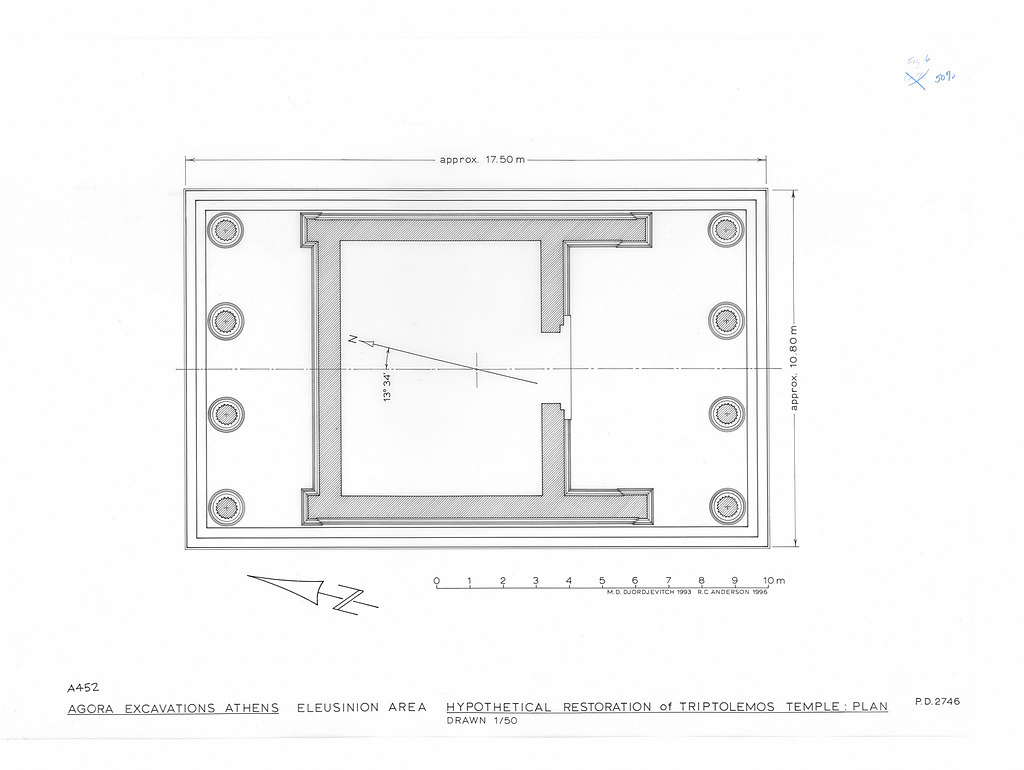
| Title: | Eleusinion; plan of restored temple. | |
| Artist: | Richard C. Anderson | |
| Storage: | 38-3 | |
| Material: | Drafting Film | |
| Medium: | Drafting Ink | |
| Size Sheet: | A2 | |
| Scale: | 1:50 | |
| Bibliography: | Agora XXXI, p. 46, fig. 6. | |
| Date: | December 1996 | |
| References: | Publication: Agora XXXI Monument: Eleusinion |