| Name: | PD 2566 (DA 3810) | |
| PD: | PD 2566 | |
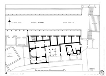
| Title: | Broad Street and building over the Library of Pantainos. | |
| Artist: | John Travlos | |
| Notes: | Refer to PD 2343. | |
| Storage: | 28 | |
| Bibliography: | Agora XXIV, pl. 48b. | |
| Date: | 1982 | |
| References: | Publication: Agora XXIV Monument: Library of Pantainos Image: 2002.01.2566 |