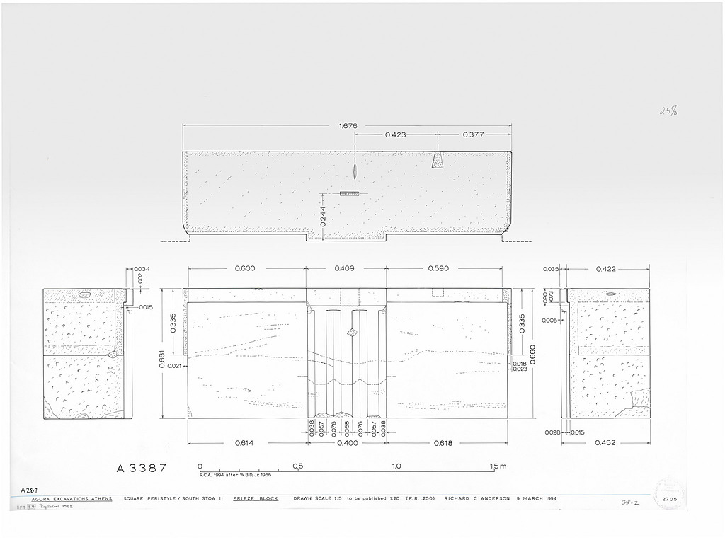
Drawing: PD 2705 (DA 281)Square Peristyle/South Stoa II, frieze block. Elevation, plan, and two ends.
image
Name:   PD 2705 (DA 281)
PD:   PD 2705
Title:   Square Peristyle/South Stoa II, frieze block. Elevation, plan, and two ends.
Artist:   Richard C. Anderson
Notes:   For Rhys Townsend; replaces PD 1562.
Storage:   35-2
Condition Drawing:   f
Material:   Drafting Film
Medium:   Drafting Ink
Size Sheet:   0.69 x 0.42
Scale:   1:5
Bibliography:   Agora XXVII, Ill. 19.
Date:   March 1994
References:   Publication: Agora XXVII
Monument: South Stoa II
Monument: Square Peristyle
Object: A 3387