| Name: | PD 1523 (DA 2697) | |
| PD: | PD 1523 | |
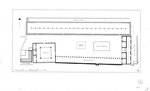
| Title: | Restored drawing of the South Square complex, ca. 100 B.C. | |
| Artist: | John Travlos | |
| Notes: | Scanned. DB: 1 (05/03/2001). | |
| Storage: | 23 | |
| Date: | 1966 | |
| References: | Places and Monuments (4) Image: 2002.01.1523 |
|
Show All Results (34,075) Places and Monuments (70) Plans and Drawings (2,553) Images (28,388) Objects (2,904) Deposits (160) Classifications Sign in Provide feedback |
|