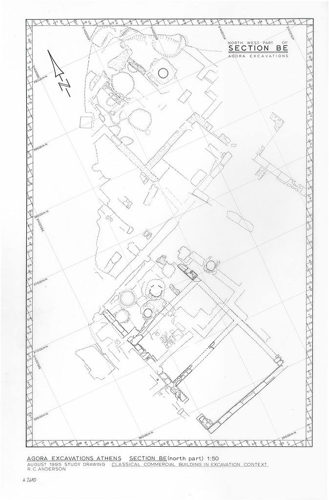
Drawing: PD 2683 (DA 2640)State plan of the Graeco-Roman remains in sections ΒΕ, ΒΖ, and ΒΗ.
image
Name:   PD 2683 (DA 2640)
PD:   PD 2683
Title:   State plan of the Graeco-Roman remains in sections ΒΕ, ΒΖ, and ΒΗ.
Artist:   Richard C. Anderson
Notes:   Reduced Copy
Storage:   22
Period:   Greek
    Roman
Bibliography:   Hesperia 66 (1997), p. 497, fig. 2.
Date:   September 1996
References:   Publication: Hesperia 66 (1997)
Image: 2002.02.0036