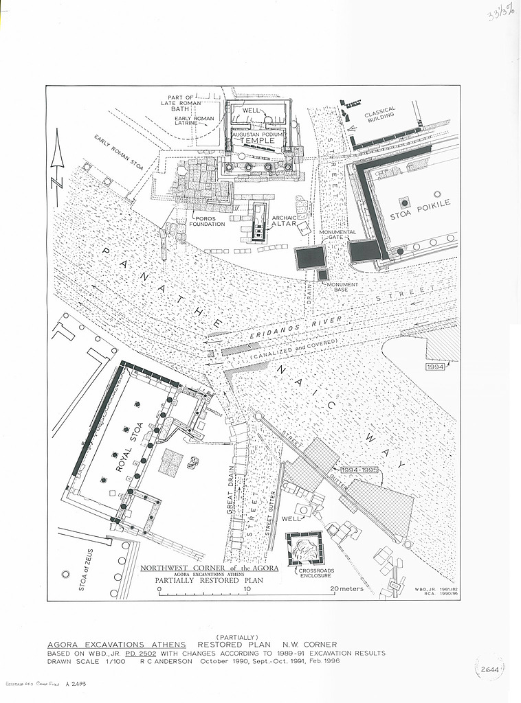
Drawing: PD 2644 (DA 2493)Partial restored plan of the northwest corner of the Agora (according to the 1989 and 1990 excavation results).
image
Name:   PD 2644 (DA 2493)
PD:   PD 2644
Title:   Partial restored plan of the northwest corner of the Agora (according to the 1989 and 1990 excavation results).
Artist:   Richard C. Anderson
Notes:   Scanned. DB: 12 (05/03/2001).
Storage:   21-1
Condition Base:   Dirty
Material:   Drafting Film
Medium:   Drafting Ink
Size Sheet:   0.594 x 0.804 (A1)
Scale:   1:100
Bibliography:   Hesperia 66 (1997), p. 496, fig. 1.
    Hesperia 65 (1996), p. 232, fig. 1.
    Agora XXXVI, p. 483, fig. 2.369.
Date:   1990
References:   Publication: Agora XXXVI
Publication: Hesperia 65 (1996)
Publication: Hesperia 66 (1997)
Image: 2015.21.0019
Image: 2002.01.2644