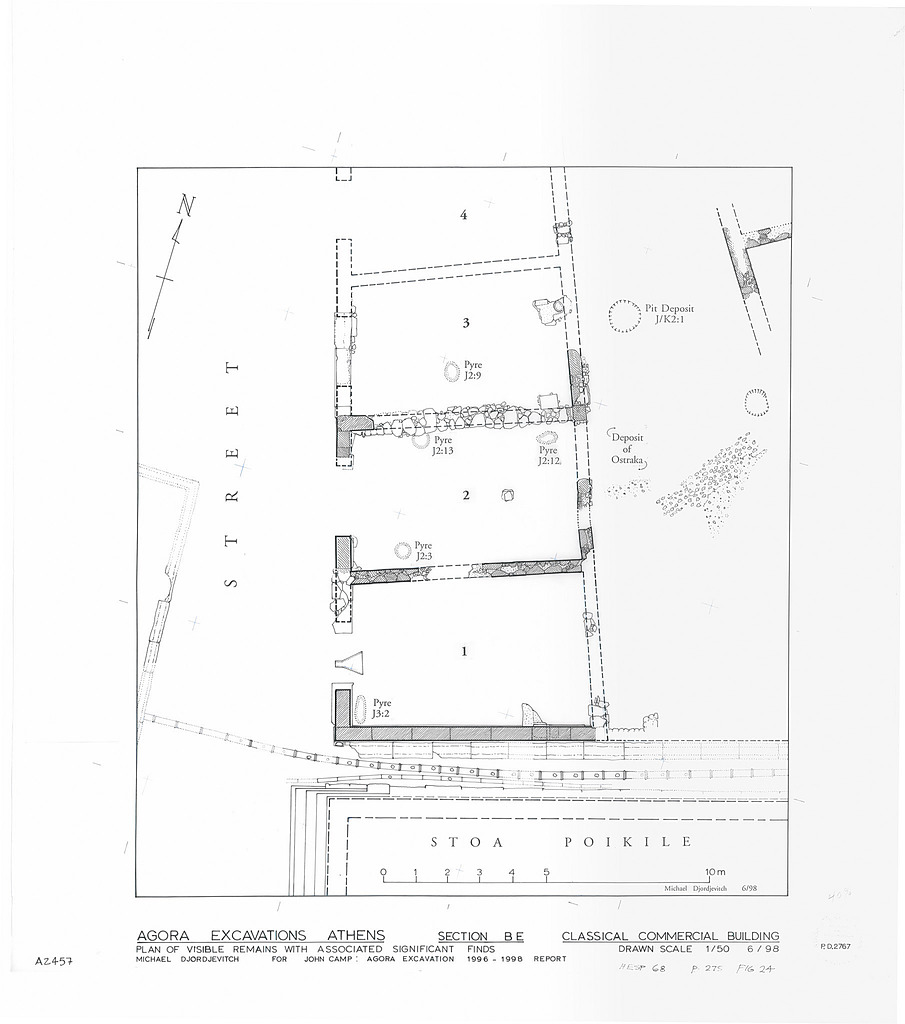
Drawing: PD 2767 (DA 2457)Classical Commercial Building, Section ΒΕ. Plan of visible remains with associated significant finds. For John Camp 1996-1998 Report.
image
Name:   PD 2767 (DA 2457)
PD:   PD 2767
Title:   Classical Commercial Building, Section ΒΕ. Plan of visible remains with associated significant finds. For John Camp 1996-1998 Report.
Artist:   Michael Djordjevitch
Storage:   21-1
Material:   Drafting Film
Medium:   Drafting Ink
Size Sheet:   0.54 x 0.60
Scale:   1:50
Bibliography:   Hesperia 68 (1999), p. 275, fig. 24.
Date:   June 1998
Section:   ΒΕ
References:   Publication: Hesperia 68 (1999)
Image: 1998.01.0002
Image: 2002.01.2767