| Name: | DA 1831 | |
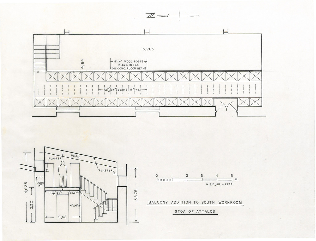
| Title: | Balcony addition to South Workroom. Stoa of Attalos. | |
| Artist: | W. B. Dinsmoor, JR. | |
| Storage: | 45-2 | |
| Condition Base: | Dirty | |
| Material: | Heavy Tracing Paper | |
| Medium: | Drafting Ink | |
| Size Sheet: | 0.421 x 0.355 | |
| Scale: | 1:50 | |
| Date: | 1979 | |
| Section: | ΣΑ |
|
Sign in Provide feedback |
|