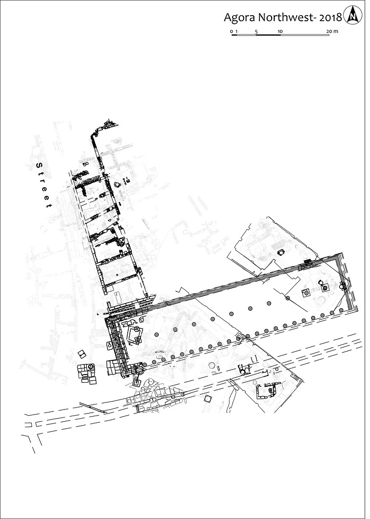
Drawing: DA 13389Northwest corner of the Agora, all phases with scarps.
image
Name:   DA 13389
Title:   Northwest corner of the Agora, all phases with scarps.
Artist:   James Herbst
Notes:   Digital file.
Student plan.
In preliminary report 2019, p. 8 (2019.10.0015).
Date:   2018
2019
Section:   ΒΕ
    ΒΖ
    ΒΗ
    ΒΘ
References:   Monument: Stoa Poikile