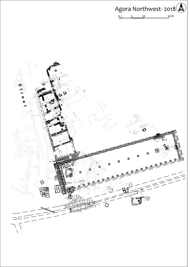
| Name: | DA 13387 | |
| Title: | Northwest corner of the Agora, all phases. | |
| Artist: | James Herbst | |
| Notes: | Digital file. Student plan. | |
| Date: | 2018 2019 | |
| Section: | ΒΕ | |
| ΒΖ | ||
| ΒΗ | ||
| ΒΘ | ||
| References: | Monument: Stoa Poikile |
|
Show All Results (3,430) Publications (6) Reports (6) Monument (1) Plans and Drawings (1,794) Images (1,412) Objects (34) References Classifications Sign in Provide feedback |
|