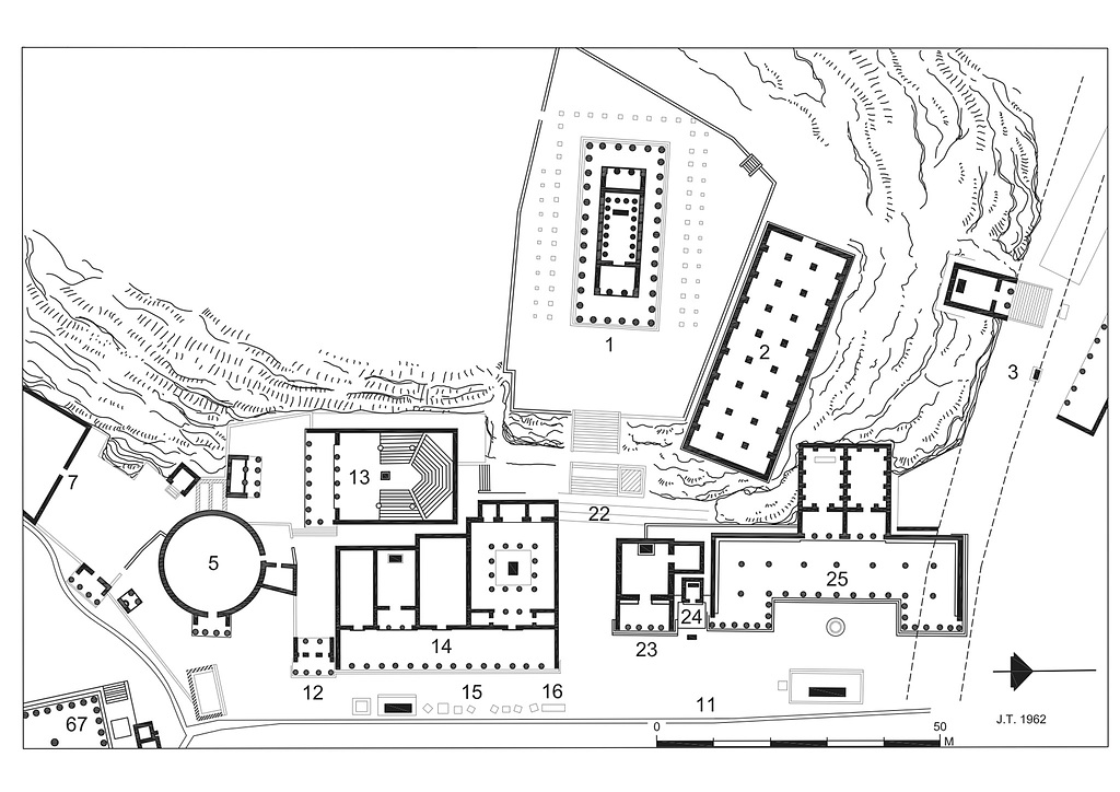
Drawing: PD 1208 (DA 13324)Buildings along the West Side of the Agora
image
Name:   PD 1208 (DA 13324)
PD:   PD 1208
Title:   Buildings along the West Side of the Agora
Artist:   John Travlos
Notes:   Digital file. Version of PD 1208.
Negative:   2011.04.0084
Bibliography:   Guide (2010), p. 43, fig. 18.
Date:   2010
References:   Image: 2008.20.0012
Image: 2002.01.1208
Image: 2000.02.0659 (Slide Sheet: 56:09)