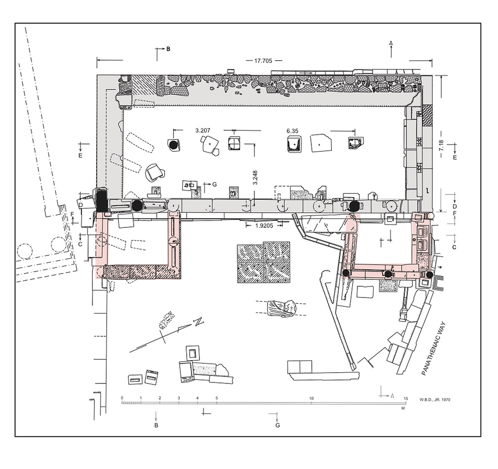
Drawing: PD 1983-2010 (DA 13295)Actual state plan of the Royal Stoa. The small columnar wings added later are highlighted in light red.
image
Name:   PD 1983-2010 (DA 13295)
PD:   PD 1983-2010
Title:   Actual state plan of the Royal Stoa. The small columnar wings added later are highlighted in light red.
Artist:   W.B. Dinsmoor, Jr.
Notes:   Version of PD 1983. Cf. PD 1983-2003
Negative:   2011.04.0054
Scale:   1:50
Bibliography:   Guide (2010), p. 77, fig. 44.
Date:   2010
1970
References:   Monument: Royal Stoa
Image: 2011.04.0054