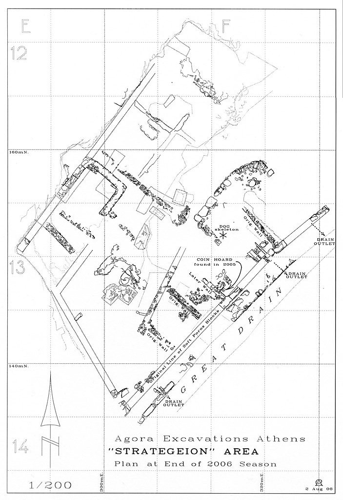
Drawing: DA 12406Northern part of section Γ at end of 2006 excavation season.
image
Name:   DA 12406
Title:   Northern part of section Γ at end of 2006 excavation season.
Artist:   Richard C. Anderson
Notes:   In End of Season Preliminary Report 2006, plan 2.
Same as 2009.01.0310 and 2009.01.0309.
Date:   2 Aug 2006
Section:   Γ