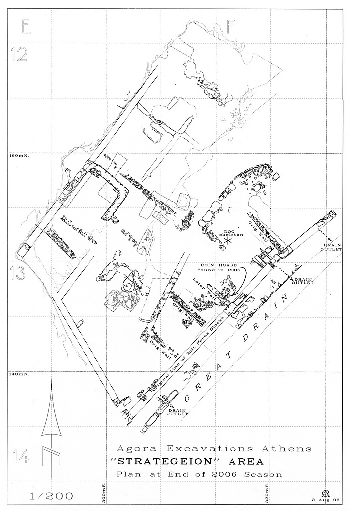
Drawing: DA 12405Strategeion Area at End of 2006 Season.
image
Name:   DA 12405
Title:   Strategeion Area at End of 2006 Season.
Artist:   Richard C. Anderson
Notes:   In End of Season Preliminary Report 2006, plan 1.
Same as 2009.01.0311. See also 2009.01.0308 and DA 12248.
Date:   2 Aug 2006
Section:   Γ
References:   Monument: Strategeion