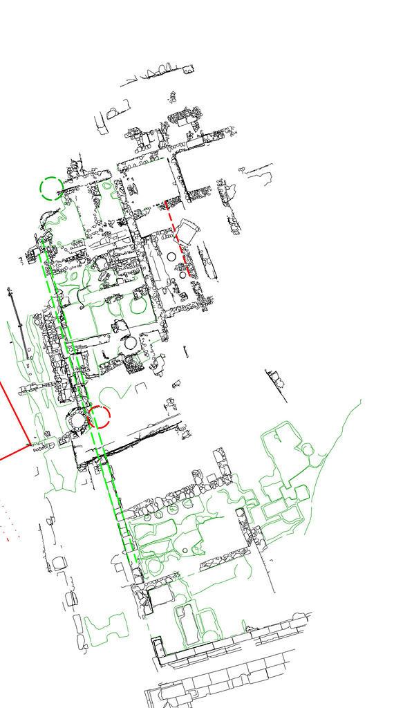
| Name: | DA 12404 | |
| Title: | Section ΒΖ at end of Excavation season 2006. | |
| Artist: | Richard C. Anderson | |
| Notes: | Digital file. Same as 2002.02.0112. | |
| Date: | 10 Aug 2006 | |
| Section: | ΒΖ |
|
Show All Results (17,800) Publications (30) Reports (62) Plans and Drawings (212) Images (17,115) Objects (177) Classifications Sign in Provide feedback |
|