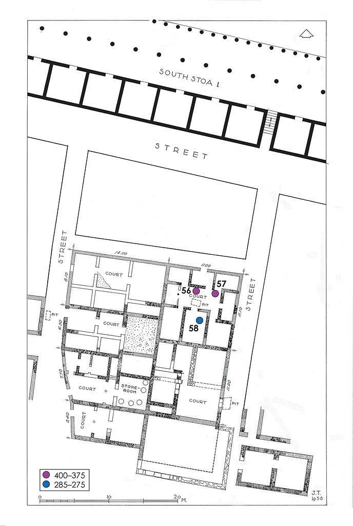
Drawing: PD 1060 (DA 12257)Plan of houses in section Φ, with pyres marked and coded for date.
image
Name:   PD 1060 (DA 12257)
PD:   PD 1060
Title:   Plan of houses in section Φ, with pyres marked and coded for date.
Artist:   J. Travlos
    Susan I. Rotroff.
Notes:   Digital file. Drawing by J. Travlos, with additions by S. I. Rotroff.
Bibliography:   Hesperia Suppl. 47 (2013), p. 169, fig. 105.
Date:   2013
Section:   Φ
References:   Publication: Hesperia Suppl. 47 (2013)
Image: 1997.14.0132 (82-608)
Image: 2002.01.1060
Image: 2014.01.0080