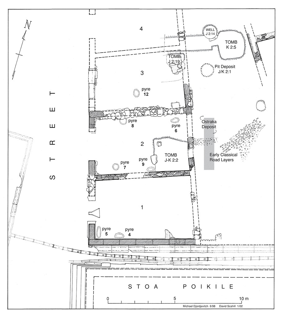
Drawing: PD 2810 (DA 12243)Plan of southernmost three rooms of Classical Commercial Building, showing locations of pyres 4-9, 12.
image
Name:   PD 2810 (DA 12243)
PD:   PD 2810
Title:   Plan of southernmost three rooms of Classical Commercial Building, showing locations of pyres 4-9, 12.
Artist:   M. Djordjevitch
    D. Scahill
    Susan. I. Rotroff
Notes:   Cf. also PD 2767.
Bibliography:   Hesperia Suppl. 47 (2013), p. 104, fig. 23.
Date:   2013
2002
1998
Section:   ΒΖ
References:   Publication: Hesperia Suppl. 47 (2013)
Image: 2002.01.2810
Image: 2014.01.0084